3400 Atlantic Avenue 3400 & 340, DAYTONA BEACH, FL 32118
Contact Tropic Shores Realty
Schedule A Showing
Request more information
- MLS#: O6379273 ( Commercial Lease )
- Street Address: 3400 Atlantic Avenue 3400 & 340
- Viewed: 36
- Price: $50,000
- Price sqft: $20
- Waterfront: No
- Year Built: 1973
- Bldg sqft: 2500
- Days On Market: 77
- Additional Information
- Geolocation: 29.1528 / -80.9703
- County: VOLUSIA
- City: DAYTONA BEACH
- Zipcode: 32118
- Subdivision: Van Valzahs Port Orange Beach
- Provided by: SLOANE REALTY, LLC
- Contact: Sloane Wurl
- 407-829-2418

- DMCA Notice
-
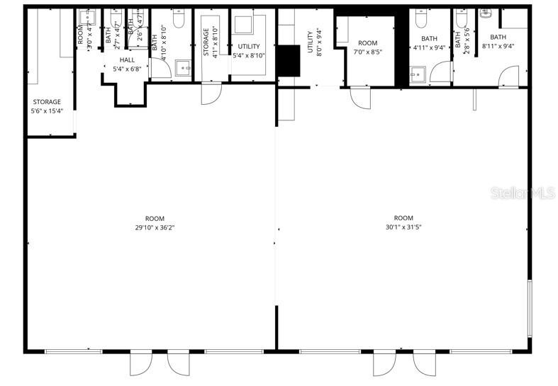
DescriptionRare opportunity to lease a commercial space just steps from the Atlantic Ocean in the heart of Daytona Beach Shores. Located along S Atlantic Avenue, double unit (3400 & 3404) this ocean adjacent property offers exceptional visibility in one of the areas most desirable coastal corridors, surrounded by beachfront condominiums, resorts, hotels, and high density residential communities. Base rent is $20 SFT and CAM $2.50 Totaling $4,687.50 monthly. Tenant pays water and power. This highly versatile space is well suited for retail, professional office, medical, boutique, wellness, or service oriented businesses (subject to zoning and city approval). The location benefits from strong daily traffic, consistent year round activity, and a built in customer base of both residents and visitors enjoying the beachside lifestyle. Property Highlights: Positioned on high visibility S Atlantic Ave Strong foot and vehicle traffic Surrounded by beachfront condos, hotels, and short term rentals Excellent exposure and signage potential Flexible layout for multiple commercial uses Ideal for businesses seeking a coastal presence in a high demand beachside community. Dont miss this opportunity to establish your business in one of Daytona Beach Shores most desirable commercial locations.
Property Location and Similar Properties
Features
Home Owners Association Fee
- 0.00
Carport Spaces
- 0.00
Close Date
- 0000-00-00
Cooling
- Central Air
Country
- US
Covered Spaces
- 0.00
Garage Spaces
- 0.00
Insurance Expense
- 0.00
Legal Description
- LOTS 1 2 & 3 BLK F PORT ORANGE BEACH EXC E 20 FT IN A1A PER OR 2048 PG 1633 PER OR 5798 PG 0607 PER OR 6492 PG 4242 PER OR 6800 PG 4028 PER OR 6800 PG 4031 PER OR 7137 PG 1162
Living Area
- 2500.00
Area Major
- 32118 - Daytona Beach/Holly Hill
Net Operating Income
- 0.00
Open Parking Spaces
- 0.00
Other Expense
- 0.00
Owner Pays
- None
Parcel Number
- 35-15-33-03-06-0010-00
Property Type
- Commercial Lease
Road Frontage Type
- City Street
Tax Year
- 2025
Tenant Pays
- Electricity
- Water
Township
- 15S
Unit Number
- 3400 & 3404
Views
- 36
Virtual Tour Url
- https://www.propertypanorama.com/instaview/stellar/O6379273
Year Built
- 1973






