5055 Flagler Estates Blvd, HASTINGS, FL 32145
Contact One Click Broker
Schedule A Showing
Request more information
- MLS#: FC317381 ( Residential )
- Street Address: 5055 Flagler Estates Blvd
- Viewed: 29
- Price: $318,000
- Price sqft: $128
- Waterfront: No
- Year Built: 2022
- Bldg sqft: 2484
- Bedrooms: 5
- Total Baths: 3
- Full Baths: 3
- Days On Market: 10
- Additional Information
- Geolocation: 29.6584 / -81.4728
- County: SAINT JOHNS
- City: HASTINGS
- Zipcode: 32145
- Subdivision: Flagler Estates
- Provided by: LPT REALTY, LLC
- Contact: Marilynn Wolfe
- 877-366-2213

- DMCA Notice
-
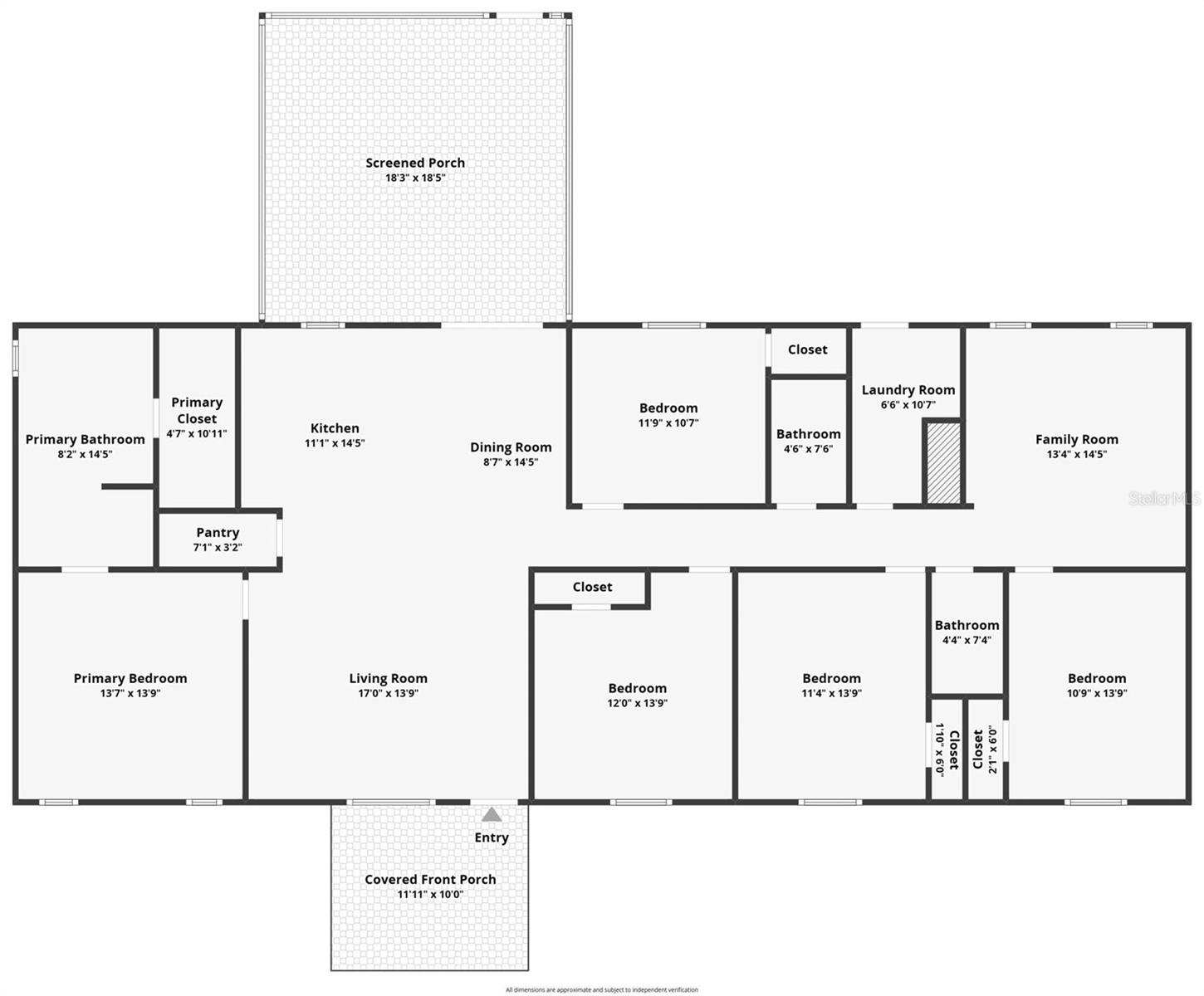
DescriptionOne or more photo(s) has been virtually staged. The floorplan you were not expectingoffering space, privacy, and the rural lifestyle many buyers are searching for near St. Augustine and Palm Coast. Virtually Staged 5 Bedrooms 3 Full Baths Built 2022 Over 1 Acre Two Living Areas 18 x 18 Screened & Covered Back Patio 10 x 11 Front Porch Well Water with Softener, Full Filtration System & Water Purifier Wired for External Generator Security Lighting Full Gutters New Driveway Recently Paved Road 20 Fruit Trees Raised Garden Beds Treated Lumber Wood Patio Two Sheds Including 12 x 22 Unit Easy Access to Cracker Swamp Road Looking for space, privacy, and true rural freedom in Flagler Estates? This modern 5 bedroom, 3 bath home built in 2022 sits on over an acre and offers the flexibility todays buyers want with the open land lifestyle youve been searching for. Inside, the layout features two separate living areas, making it ideal for multi generational living, a home office, homeschool setup, media room, or guest quarters. The design allows everyone to spread out while still feeling connected. Outside, enjoy peaceful Florida living with a large screened and covered back patio perfect for relaxing evenings and entertaining. The charming front porch welcomes you home, while the expansive acreage provides room for gardening, outdoor toys, animals (per zoning), or simply enjoying space between neighbors. With well water, full filtration and purification systems, generator wiring, and security lighting, this property supports a more independent lifestyle while still offering modern comforts. The newly installed driveway and freshly paved county road make access smooth and convenient. If youve been searching for a newer home on acreage in Flagler Estates that offers flexibility, functionality, and freedom, this property checks the boxes. Homesteader's dream or someone looking to raise chickens. Gardener's delight Buyer to verify all measurements, zoning, land use, and property details.
Property Location and Similar Properties
Features
Appliances
- Dishwasher
- Disposal
- Dryer
- Electric Water Heater
- Microwave
- Range
- Washer
- Water Filtration System
Home Owners Association Fee
- 0.00
Carport Spaces
- 0.00
Close Date
- 0000-00-00
Cooling
- Central Air
Country
- US
Covered Spaces
- 0.00
Exterior Features
- None
Flooring
- Carpet
- Vinyl
Furnished
- Unfurnished
Garage Spaces
- 0.00
Heating
- Electric
Insurance Expense
- 0.00
Interior Features
- Ceiling Fans(s)
- Solid Surface Counters
- Split Bedroom
- Walk-In Closet(s)
- Window Treatments
Legal Description
- PT OF SW1/4 165 X 330FT (EX N 30FT) (OR TRACT 83 UNIT 2 FLAGLER ESTATES UNREC PLAT) OR5636/145
Levels
- One
Living Area
- 2160.00
Area Major
- 32145 - Hastings
Net Operating Income
- 0.00
Occupant Type
- Vacant
Open Parking Spaces
- 0.00
Other Expense
- 0.00
Parcel Number
- 050310-0083
Property Type
- Residential
Roof
- Shingle
Sewer
- Septic Tank
Tax Year
- 2025
Township
- 10
Utilities
- Electricity Connected
- Sewer Connected
- Water Connected
View
- Trees/Woods
Views
- 29
Virtual Tour Url
- https://www.zillow.com/view-imx/f0db8bf6-801c-421f-ab15-108f6d1f32fe?wl=true&setAttribution=mls&initialViewType=pano
Water Source
- None
Year Built
- 2022
Zoning Code
- OR

















































































