15931 101st Circle, SUMMERFIELD, FL 34491
Contact One Click Broker
Schedule A Showing
Request more information
- MLS#: OM720368 ( Residential )
- Street Address: 15931 101st Circle
- Viewed: 5
- Price: $279,990
- Price sqft: $187
- Waterfront: No
- Year Built: 2026
- Bldg sqft: 1498
- Bedrooms: 4
- Total Baths: 2
- Full Baths: 2
- Garage / Parking Spaces: 2
- Days On Market: 32
- Additional Information
- Geolocation: 28.9915 / -81.9843
- County: MARION
- City: SUMMERFIELD
- Zipcode: 34491
- Subdivision: Sunset Hills
- Elementary School: Harbour View Elementary School
- Middle School: Lake Weir Middle School
- High School: Lake Weir
- Provided by: DR HORTON REALTY OF WEST CENTRAL FLORIDA
- Contact: Anne Peterson Eger
- 352-414-3365

- DMCA Notice
-
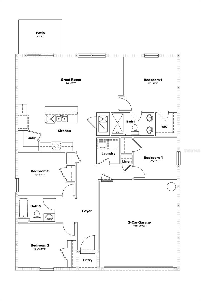
DescriptionOne or more photo(s) has been virtually staged. Under Construction. This all concrete block constructed, one story home optimizes living space, featuring an open concept kitchen overlooking the great room and outdoor patio. The well appointed kitchen comes with all stainless steel appliances, including a built in dishwasher, range, and microwave. Bedroom 1 is located at the rear of the home for privacy and features an ensuite bathroom and walk in closet near the bathroom. Two additional bedrooms at the front of the home are separated by the second bathroom. The third bedroom is located across the hallway near the laundry room. Pictures, photographs, colors, features, and sizes are for illustration purposes only and will vary from the homes as built. Home and community information including pricing, included features, terms, availability and amenities are subject to change and prior sale at any time without notice or obligation. CRC057592.
Property Location and Similar Properties
Features
Appliances
- Dishwasher
- Microwave
- Range
Home Owners Association Fee
- 44.00
Association Name
- Boyd Property Management
Builder Model
- Freeport II
Builder Name
- DR Horton INC
Carport Spaces
- 0.00
Close Date
- 0000-00-00
Cooling
- Central Air
Country
- US
Covered Spaces
- 0.00
Flooring
- Carpet
- Luxury Vinyl
Furnished
- Unfurnished
Garage Spaces
- 2.00
Heating
- Electric
- Heat Pump
High School
- Lake Weir High School
Insurance Expense
- 0.00
Interior Features
- Open Floorplan
Legal Description
- SEC 23 TWP 17 RGE 23 PLAT BOOK 016 PAGE 074 SUNSET HILLS PHASE II LOT 156
Levels
- One
Living Area
- 1498.00
Middle School
- Lake Weir Middle School
Area Major
- 34491 - Summerfield
Net Operating Income
- 0.00
New Construction Yes / No
- Yes
Occupant Type
- Vacant
Open Parking Spaces
- 0.00
Other Expense
- 0.00
Parcel Number
- 4820-002-156
Pets Allowed
- Yes
Property Condition
- Under Construction
Property Type
- Residential
Roof
- Shingle
School Elementary
- Harbour View Elementary School
Sewer
- Public Sewer
Tax Year
- 2025
Township
- 17
Utilities
- Other
Virtual Tour Url
- https://www.zillow.com/view-imx/bed36a75-4815-4142-8fe5-400ac738bddd?initialViewType=pano
Water Source
- Public
Year Built
- 2026
Zoning Code
- PUD






























